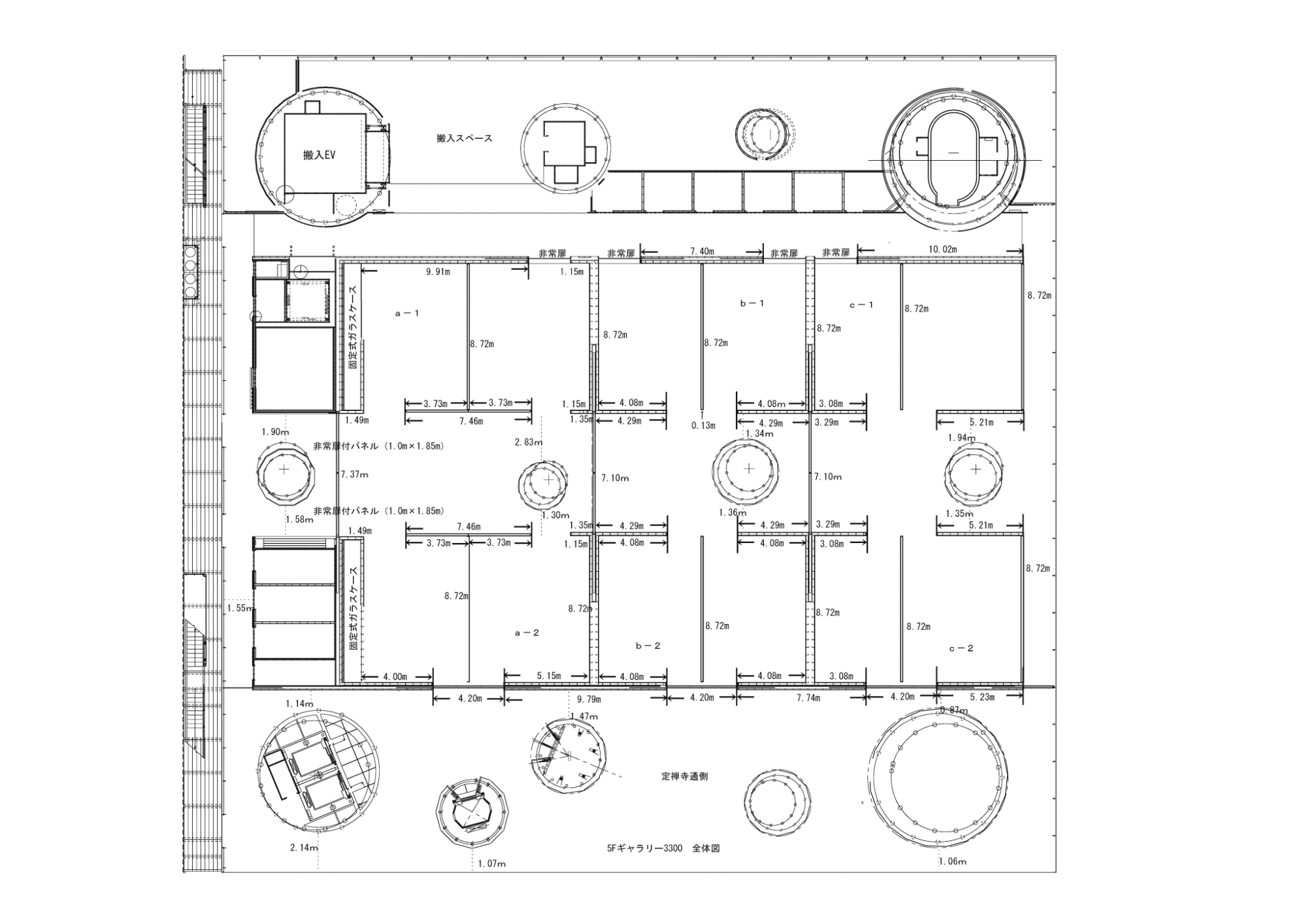
ギャラリー3300
の機能説明

固定壁面

展示空間は、固定壁面で6つの空間に区切られています。
さらに各区画の一部は、可動パネルによって区切ることもできます。

ホワイエ

写真 ホワイエの全景

5階の南側のオープンスペースです。

チューブ(柱)

写真 チューブ

チューブ

写真 遮光幕を被せたチューブ

遮光幕を被せたチューブ

室内に「チューブ」があります。
光の通り道となっていますが、遮光幕で覆うことができます。

ロールスクリーン

写真 東側通路スクリーンを収納した状態

東側通路スクリーンを収納した状態

写真 東側通路スクリーンで遮光した状態

東側通路スクリーンを遮光した状態

ギャラリー3300の東側には、ロールスクリーンがあります。

レセプション

ギャラリー3300全体を使用する場合、ホワイエ内で関係者のみが参加するレセプションを開催することができます。